Norton 7500 Template

Norton 7500 Tri Style 80 9377 1201 020

Norton 7500 Tri Style 80 9377 1201 020

Norton Uni7500 Uni7700 Unitrol 80 9377 1351 020

Norton Uni7500 Uni7700 Unitrol 80 9377 1351 020

Justdoortoolz Norton 7500 Reg Permanent Template For Norton 7500 Reg Pull Side Mount Door Closer

Justdoortoolz Norton 7500 Reg Permanent Template For Norton 7500 Reg Pull Side Mount Door Closer

Justdoortoolz Norton 7500 Reg Permanent Template For Norton 7500 Reg Pull Side Mount Door Closer

Templates for nortons door closers door holders as well as their electrified products templates library door controls door closers door automatics door operators rack and pinion closers this website uses cookies.

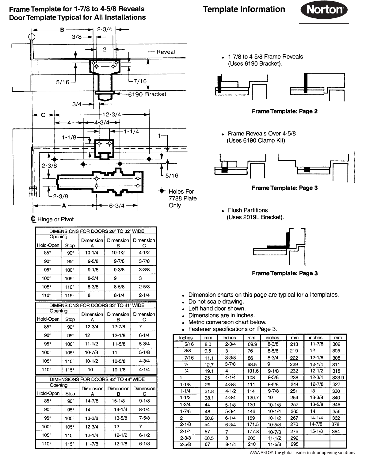
Norton 7500 template. Using power adjustment chart below rotate power adjustment shaft with 18 allen wrench supplied. Norton model 7500 template author. Ideal for interior or exterior doors in facilities that demand reliability. Instructions a separate template will be required.

Its body is constructed of high quality cast aluminum. Choose options below this norton 7500 institutional door closer is designed to meet the requirements necessary in very high demanding commercial and institutional applications. Caution non hold open door closers models 7500 j7500 jl7500 p7500. Closer is shipped from factory set at mid range.

Installation instructions for norton door controls products. 7500 7700 7700cou and 7700tel series door closers with 2403 or 2403 34 bracket. Installation instructions 7500 series 80 9377 1201 020 06 03 an incorrectly installed or improperly adjusted door closer can cause property damage or personal injury. Adjustable spring sizes 1 through 6 ada compliant.

7500 series closers only. These instructions should be followed to avoid the possibility of misapplication or misadjustment. Its spring size can be adjusted from 1 to 6. The 7500 series door closer offers customers the ideal combination of superior performance strength and quality.

Norton product templates for norton door closers and holders from the 1600 series to the no.

Norton 7500 Closer

Norton 7500 Closer

Norton 7500 Tri Style 80 9377 1201 020

Norton 7500 Tri Style 80 9377 1201 020

The 7500 Series Door Closer From Norton Door Controls

The 7500 Series Door Closer From Norton Door Controls

Norton 7788 Door Closer Drop Plate For 7500 Series

Norton 7788 Door Closer Drop Plate For 7500 Series

Norton 7500 689 Institutional Door Closer Aluminum

Norton 7500 689 Institutional Door Closer Aluminum

Locks 7500 Installation Instructions 80 9377 1201 020

Locks 7500 Installation Instructions 80 9377 1201 020

7500 Series

7500 Series

Norton 7786

Norton 7786

Permanent Template Norton Combo Pack

Permanent Template Norton Combo Pack

Norton 7500 Institutional Superior Performance Strength Door

Norton 7500 Institutional Superior Performance Strength Door

Cps7500 689 Cps7500 690 Institutional Door Closer With

Cps7500 689 Cps7500 690 Institutional Door Closer With

Permanent Template Norton Combo Pack

Permanent Template Norton Combo Pack

Norton 8301 8301h Multi Sized Door Closer

Norton 8301 8301h Multi Sized Door Closer

Justdoortoolz Norton 7500 Pa Permanent Template For Norton 7500 Parallel Push Side Mount Door Closer

Justdoortoolz Norton 7500 Pa Permanent Template For Norton 7500 Parallel Push Side Mount Door Closer

Norton 7500 Door Closer

Norton 7500 Door Closer

Installing The Corbin Russwin Dc 210 Door Closer Locksmith

Installing The Corbin Russwin Dc 210 Door Closer Locksmith

Penner Doors Norton 7500 Closer

Penner Doors Norton 7500 Closer

Norton Uni7500 33 41 689 Unitrol Arm Door Closer Craftmaster Hardware

Norton Uni7500 33 41 689 Unitrol Arm Door Closer Craftmaster Hardware

Source : pinterest.com

Popular Posts